m e n u

+33 (0)4 66 32 47 20

m e n u
Retour

Annexes des Archives Départementales de la Lozère

En savoir plus

Plan de situation

Plan de situation

Plan masse

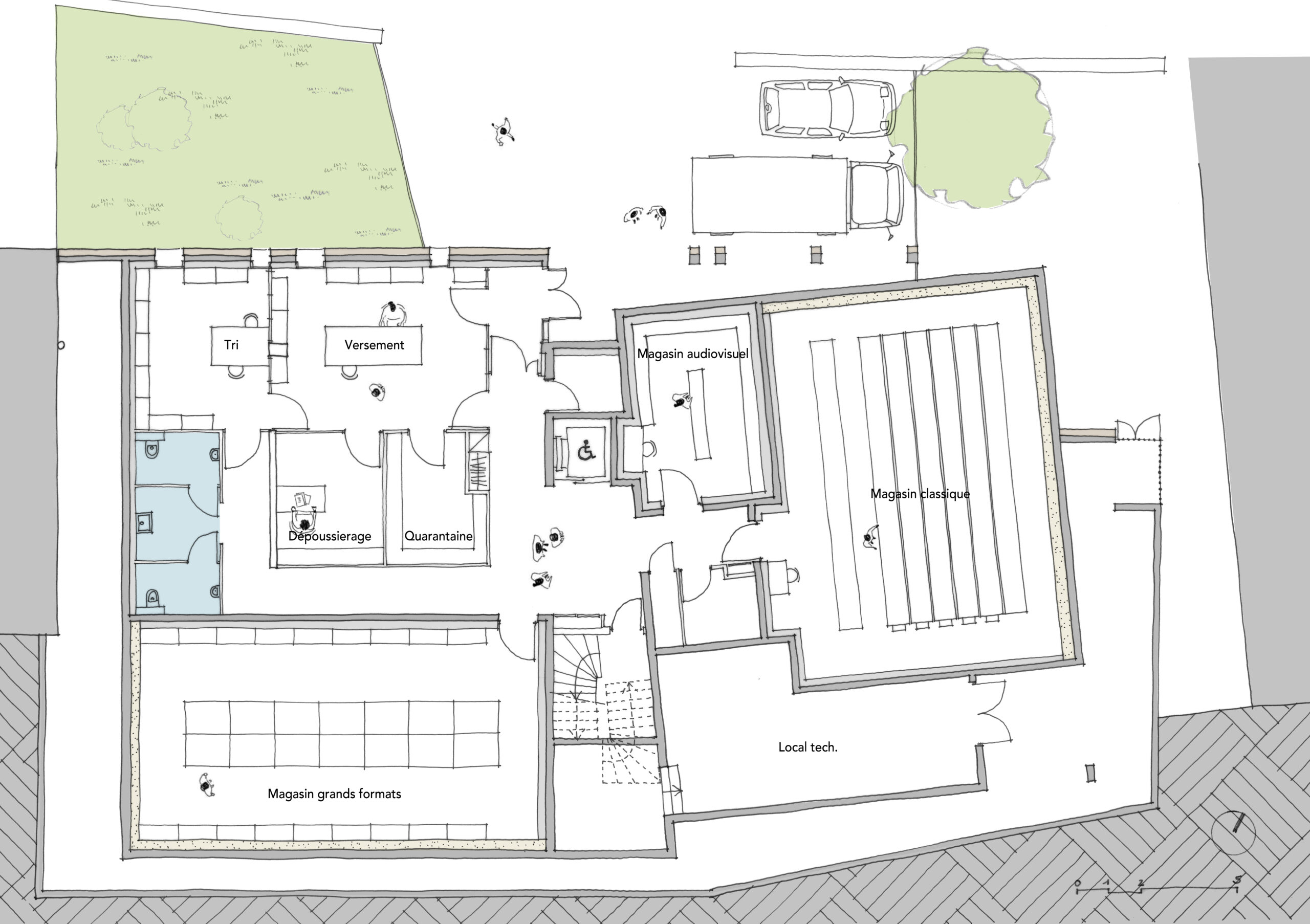
Plan RdC

Plan R+1

Plan R+2

Coupe transversale

Coupe d'ambiance

Coupes détaillées - composition des murs

Vue depuis la promenade du bord du Lot, en direction du centre-ville de Mende

Vue depuis l'Avenue du Père Coudrin, sens sortie de ville

Vue depuis l'Avenue du Père Coudrin, vers le centre-ville

Vue depuis la nouvelle circulation piétonne

Vue plongeante sur le projet en direction de Mende

Vue depuis l'Allée Raymond Fages vers le causse d'Auge

Vue intérieure depuis le palier haut de l'escalier

Vue intérieure depuis la salle de tri

Vue intérieure depuis la salle de versement

Plan de situation

Plan de situation

Plan masse

Plan RdC

Plan R+1

Plan R+2

Coupe transversale

Coupe d'ambiance

Coupes détaillées - composition des murs

Vue depuis la promenade du bord du Lot, en direction du centre-ville de Mende

Vue depuis l'Avenue du Père Coudrin, sens sortie de ville

Vue depuis l'Avenue du Père Coudrin, vers le centre-ville

Vue depuis la nouvelle circulation piétonne

Vue plongeante sur le projet en direction de Mende

Vue depuis l'Allée Raymond Fages vers le causse d'Auge

Vue intérieure depuis le palier haut de l'escalier

Vue intérieure depuis la salle de tri

Vue intérieure depuis la salle de versement

Mende – Lozère (48)

Maîtrise d’Ouvrage: Conseil Départemental de la Lozère

LCD’O architectes associés – (Mandataire: Atelier Bessin-Sebelin)

Surface: 860m²

Montant des travaux: 2 081 400.00 € H.T.

Date de livraison: mars 2026

 

Le projet porte sur la construction d’annexes pour les archives départementales de la Lozère, non loin de celles-ci, dans un quartier mixte en entrée de ville.

Il s’implante dans un site marqué par les courbes topographiques et la rivière du Lot et s’adapte à la pente en s’enfouissant partiellement dans le terrain.

Sa forme compacte et sobre, composée d’un soubassement pierre et de volumes massifs en béton de site (béton calcaire local mis en œuvre en strates) affirment son rôle d’écrin.

En effet, le bâtiment répond à l’enjeu essentiel de préserver la mémoire fragile et de la transmettre.

Une attention particulière est portée aux toitures (dissimulation des équipements) et aux détails techniques pour préserver l’aspect monolithique du bâtiment.